河北華威電氣設備公司是專業的干式變壓器廠家,還有油浸式變壓器、箱式變電站多種型號可供選擇,我們期待與您的合作!
您身邊的電網設備管家
型號含義

產品概述
ZW32口-12口/ 630-0口戶外交流高壓真空斷路器(以下簡稱斷路器)為額定電壓12kv、三相交流50Hz的戶外設備。主要用于開斷、關合配電系統中的負荷電流、過載電流及短路電流。適用于變電站及工礦企業配電系統中作保護和控制之用,及農村電網頻繁操作的場所。也可作為電網的分段開關,加裝控制器后,可實現配網自動化。
例: ZW12C-12P / 630-20表示戶外交流高壓真空斷路器、加戶外隔離開關、電泳不銹鋼外殼、電動機構、額定開斷電流為20KA。
引用標準
GB1984《交流高壓真空斷路器》
GB11022《高壓開關設備通用技術條件》
GB311.1《高壓輸變電設備的絕緣配合》
DL/T593《高壓開關設備的共用訂貨技術條件》
DL/T402《交流高壓斷路器訂貨技術條件》
GB2706《交流高壓電器動、熱穩定試驗方法》
GB3309《高壓開關設備在常溫下的機械試驗》
DL 403《10-35KV戶內高壓真斷路器訂貨技術條件》
使用的環境條件
a.海拔高度不超過2000米;
b.周圍空氣溫度: -45C ~+47.5C ;日溫差:日變化25C ;
c.風速不大于35m/s;
d.無易燃、易爆炸危險化學腐蝕及劇烈振動的場所。
主要技術參數

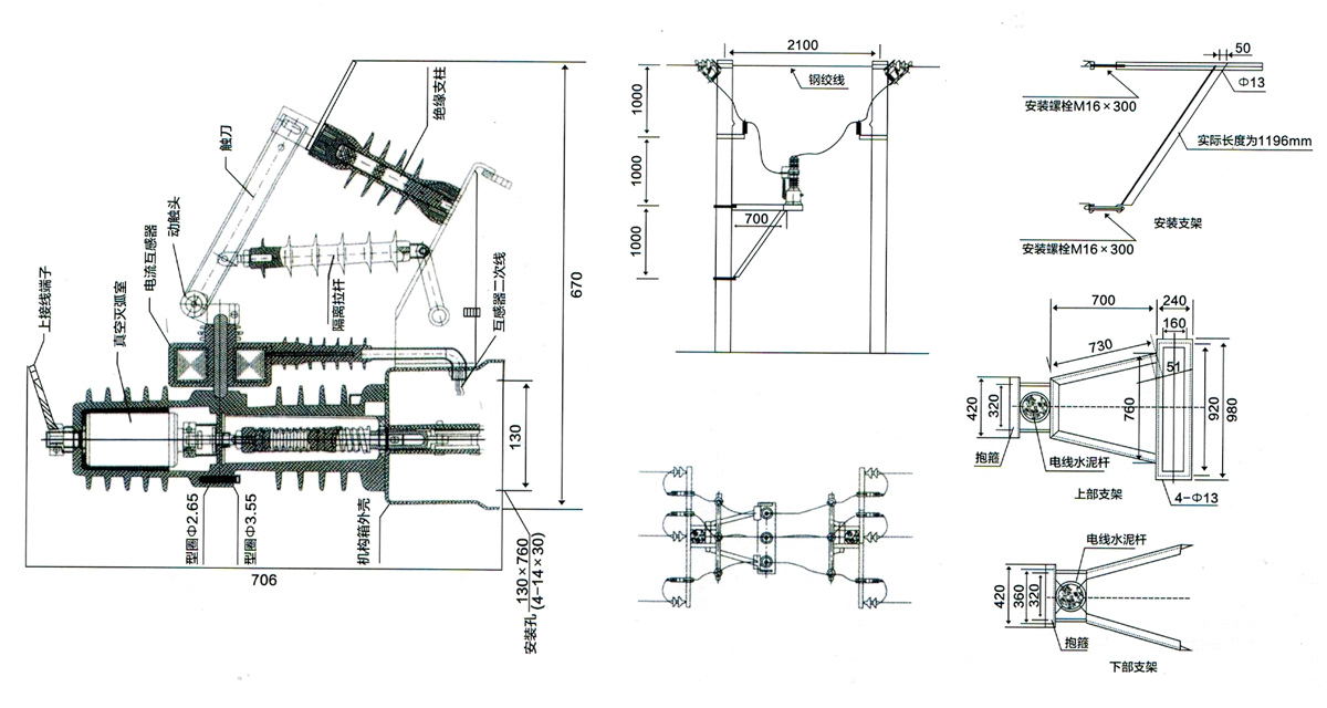
外形及安裝尺寸

用解決問題的心態做事,我們熱愛我們的行業。
DO THINGS WITH A PROBLEM-SOLVING MINDSET, WE LOVE OUR INDUSTRY.
WITH EXCELLENT DESIGN TEAM AND EXCELLENT PRODUCTION EQUIPMENT, TO PROVIDE CUSTOMERS WITH EXCELLENT PRODUCTS AND

涿州市松林店工業西路與政府街交叉口

全國售后電話: 400-607-1978

huaweibyq@163.com